| 型號: | CG-Chairman |
|---|---|
| 規格: | |
如何用高隔斷來演繹空間之美 |
|
前言:
把辦公室的氛圍設計得和睦友好,其用意主要是創造 一種社交景觀,通過和睦友好的氛圍,將員工們引入一個有共同目標的團體中。高隔斷的出現,正是符合了這樣的新辦公人文理念,擯棄了以往的呆板乏味、缺乏靈動的空間意識。在一定程度上顛覆了人們傳統辦公空間的意識形態,而更符合現代人所接納的辦公空間理念(為什么這么說呢),它綠色環保節能省材,材料90%的重復使用率,空間靈活多變,工期短,是可以帶走的裝修。這主要體現在高隔斷裝潢六大的優勢: ①靈活的空間重組,90%的材料重復利用。 ②模塊化現場組裝、裝潢工程期短 ③表面材料的千面萬化,增加了更多人性化和設計的可能性 |
|
設計禁忌: 高隔斷在設計中有一些問題是要注意的,當和客戶洽談方案的過程中,請謹慎地回答客戶提出的問題,切勿盲目地答應客戶提的設計要求,畢竟高隔斷也有自身的局限性。 一,未頂到天花的高隔斷,固定方式有五種 1 雙面隔墻每隔3米左右距離加一支連接柱,并且連接柱需伸到樓頂再加以固定;單玻隔墻為每兩樘加一支連接柱。 二、走線功能 三,面材的設計注意事項 |
|
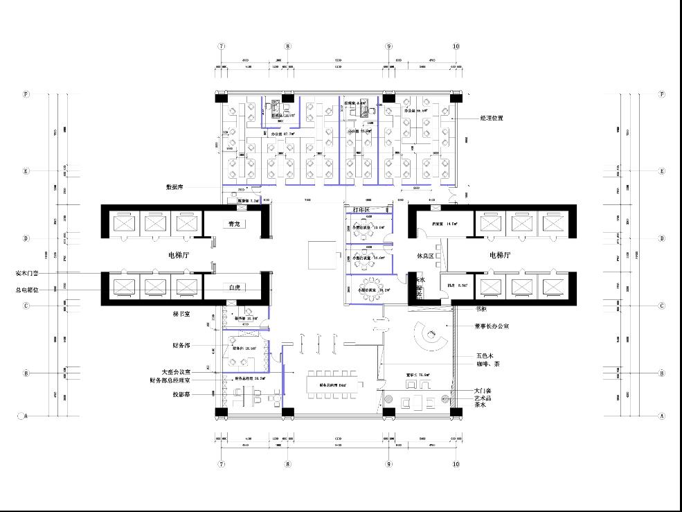
設計方案分析: 廣州光亞展覽貿易有限公司(甲方),成立于 1995 年,是廣州展覽行業成立最早的民營展覽公司之一, 廣東會議展覽業協會和廣州市會展業行業協會的副會長單位,旗下的 “ 廣州國際照明 + 建筑電氣技術展覽會” 現已發展成為亞洲最大、全球第二的國際性展覽會。 |
修改前的平面布置圖![]() |
|
|
| 走道是雙面108款鋼化玻璃設計,最大化的把自然光引進室內。單玻密拼實木門的運用,黑色的鋁合金框架,大面積鋼化霧玻和清玻搭配,都透露著設計者的良苦用心! |
|
|
| 密拼實木門的設計是本案的一大亮點,它在以后的方案設計中起到一定的主導作用,會議室主講臺隔墻,中間是淺藍烤漆玻用以書寫,筆托設計的是鑲嵌式的,是為了防止人員碰撞。兩邊是黑色KM板加以裝飾,使得整面隔墻樸素,內斂,大氣! |
案例欣賞![]() |
案例欣賞![]() |
案例欣賞![]() |
